ÊChapitre 10
L'Imagerie
3 - DŽtourage de l'Image d’un Calque
4 – Fond de Plan 3D sur Vue OpenGL
La modŽlisation consiste ˆ crŽer une maquette virtuelle. Cette maquette est conservŽe dans l'ordinateur sous forme numŽrique. Elle est donc physiquement invisible. Elle n'existe ˆ nos yeux que par les images qui sont produites par le systme de visualisation de 3D Turbo et qui sont affichŽes sur l'Žcran puis imprimŽes sur papier.
La seule manire d'intervenir sur cette maquette virtuelle est donc de passer par l'intermŽdiaire de l'image ˆ l'Žcran et du pointeur graphique associŽ ˆ la souris.
La production des images (vues orthographiques, vues perspectives,…) est dŽcrite au chapitre "Techniques de Base de la Visualisation3D" et au suivant.
Ce chapitre explique comment manipuler les images et l'environnement graphique de travail.
Toutes les images sont produites dans une seule fentre : la Fentre de travail. Cette fentre est redimensionnable de plusieurs manires. La dimension et la position de la fentre de travail sont mŽmorisŽes dans les points de vue enregistrŽs et dans les environnements de travail et restaurŽes lors de l'activation d'un point de vue ou d’un environnement de travail..
|
|
|
|
|
|
|
Changer la Dimension de la Fentre de travail# |
|
|
|
1 - Changer la Dimension de la Fentre de travail |
|
|
|
|
La fentre de travail occupe l'espace libre existant entre les docks supŽrieur, infŽrieur, droit et gauche.
La fentre de travail peut tre redimensionnŽe pour lui donner un autre aspect et d'autres proportions (images de synthses) :
Fentre redimensionnable manuellement :
Cliquer dans l'ic™ne
.
ou
Utiliser le menu Vues/Dessin redimensionnable.
La fentre de travail est dŽsormais entourŽe d'une bordure qui permet de la redimensionner et la positionner.
ÊÊÊÊÊÊÊÊÊÊÊÊÊÊÊÊÊÊÊÊÊÊÊÊÊÊÊ 
Positionner le curseur
sur la case de redimensionnement. Cliquer et draguer pour modifier la dimension
de la fentre. La taille de la fentre est affichŽe dynamiquement dans la barre
d’Žtat pendant cette opŽration : ![]()
Pour changer la position de la fentre, cliquer sur l’une de ses bordures et draguer pour modifier sa position
L'ic™ne reste enfoncŽe pour indiquer cet Žtat.
Fentre non redimensionnable :
Cliquer ˆ nouveau dans l’ic™ne
ou sur le bouton
Êde la barre de la fentre pour
retourner ˆ l’Žtat non redimensionnable.
Dockage de la Fentre de travail (Macintosh) :
Pour ranger la fentre de travail dans le dock, cliquer sur
le bouton ![]()
Redimensionnement calibrŽ :
Pour dimensionner la fentre de travail numŽriquement,
effectuer un clic contextuel dans la fentre de travail et choisir la rubrique ![]()
|
|
Le menu Pop-Up proposant des dimensions standardisŽes est affichŽ.
Choisir une taille prŽdŽterminŽe.
La fentre de travail est redimensionnŽe ˆ la taille choisie par rapport ˆ son coin haut gauche.
Si la taille dŽsirŽe ne figure pas dans le menu,Ê choisir la rubrique “Autre“ |
|
|
Renseigner les champs Largeur et Hauteur manuellement ou ˆ l’aide du menu puis cliquer sur le bouton OK.
La fentre de travail est redimensionnŽe ˆ la taille choisie par rapport ˆ son coin haut gauche. |
|
Il n’y a pas de limite imposŽe ˆ la taille de la fentre, ce qui permet d’obtenir des images de grande dimension en mode OpenGL. NŽanmoins pour obtenir des performances maximales, il est recommandŽ de se limiter aux dimensions indiquŽes en rouge, calculŽes que la base de la mŽmoire intŽgrŽe dans la carte video (VRAM) de votre machine. La fentre de travail peut tre dŽplacŽe sur un Žcran secondaire. Pour rŽcupŽrer la fentre sur l’Žcran principal (ma”tre) cliquer 2 fois sur le boutonÊ “Changer la dimension deÊ la fentre de travail”, ce qui la recale sous les docks. |
|
|
|
|
Fentre Plein Žcran# |
|
|
|
2 - Fentre Plein Žcran |
|
|
|
|
Pour redimensionner la fentre de travail ˆ la taille physique de l'Žcran :
Cliquer dans l'ic™ne
Êavec
le bouton droit.
ou
Utiliser le menu Vues/Dessin plein Žcran.
La fentre de travail occupe toute la surface de l'Žcran. La barre de menu dispara”t. Les docks disparaissent. Seules les fentres flottantes d'outillages sont disponibles. Les accŽlŽrateurs et les strokes sont disponibles.
Une petite fentre
supplŽmentaire appara”t : ![]()
Pour sortir du mode d'affichage plein Žcran :
Cliquer dans l'ic™ne de cette petite fentre ou appuyer sur la touche Echap.
Les opŽrations sur l'image sont disponibles ˆ tout moment, mme (et surtout) pendant le cours des fonctions de modŽlisation.
Il est trs souvent nŽcessaire de modifier la taille de l'image affichŽe, afin de la clarifier, de dŽgager une zone dense pour isoler les nœuds en vue de sŽlectionner ou pointer.
|
|
|
|
|
|
|
ÊRŽglage des Facteurs de zoom# |
|
Ctrl+ |
|
1 - RŽglage des Facteurs de zoom |
|
|
|
|
Pour rŽgler les facteurs de zoom avant et arrire d'agrandissement :
Cliquer dans l'ic™ne
Êou
Êavec le bouton droit.
Le dialogue suivant est proposŽ :

Renseigner les valeurs numŽriques des facteurs de zoom puis fermer le dialogue en cliquant sur le bouton OK.
|
|
|
|
|
|
|
Zoom Avant# |
|
|
|
2 - Zoom Avant |
|
|
|
|
Pour agrandir l'image par le facteur de zoom avant :
Cliquer dans l'ic™ne
.
|
|
|
|
|
|
|
Zoom Arrire# |
|
|
|
3 - Zoom Arrire |
|
|
|
|
Pour rŽtrŽcir l'image par le facteur de zoom arrire :
Cliquer dans l'ic™ne
.
REMARQUE 1 : Les zooms avant et arrire Žtant des fonctions utilisŽes extrmement souvent, il est vivement recommandŽ d'utiliser les accŽlŽrateurs (> et < par dŽfaut) ou les strokes ou la molette de la souris pour rŽaliser des zooms. On gagnera ainsi de prŽcieuses secondes.
ÊREMARQUE 2 : On peut zommer instantanŽment en roulant la molette de la souris en avant ou en arrire sur la vue affichŽe (facteur Lent) . En roulant avec la touche ÊMaj Êon zoom avec le facteur Rapide. Ces facteurs se rglent dans les prŽfŽrences :
|
|
En zoomant avec la touche Option (Alt) sur une vue
Perspective, le curseur devientÊ
Êet on rŽalise un Avance/Recul de la
camŽra le long de la droite de visŽe, donc on se rapproche ou on
s’Žloigne du point visŽ.
|
|
|
|
|
|
|
Zoom Fentre# |
|
|
|
4 - Zoom Fentre |
|
|
|
|
Pour agrandir une image par un facteur reprŽsentant la proportion entre la dimension d'un cadre et celle de la fentre :
Cliquer dans l'ic™ne
Êpuis cliquer dans la
fentre de travail.
Draguer pour former un rectangle.
L‰cher le bouton de la souris pour dŽclencher le zoom.
Cliquer ˆ nouveau dans l'ic™ne
Êpour quitter le mode zoom fentre.
Il est cependant plus pratique de procŽder Žgalement comme suit :
Appuyer simultanŽment sur les touches Ctrl et Maj.
Le curseur se transforme en ![]()
Cliquer dans la fentre de travail.
Draguer pour former un rectangle.
L‰cher le bouton de la souris pour dŽclencher le zoom.
|
|
|
|
|
|
|
Redimensionner l'image# |
|
Ctrl+ |
|
5 - Redimensionner l'image |
|
|
|
|
Pour redimensionner l'image ˆ une valeur spŽciale :
Cliquer dans l'ic™ne
Êavec le bouton
droit.
Le dialogue suivant est proposŽ :

Les dimensions des formats de papier standard sont proposŽes. Les boutons Portrait et Paysage permettent de choisir l'orientation des formats standards.
Pour introduire une autre dimension :
Cocher la case
Ê
Introduire les largeur et hauteur de l'image en mm dans les champs numŽriques.
Fermer le dialogue en cliquant dans le bouton OK
L'image est redimensionnŽe. Elle peut le cas ŽchŽant dŽborder du cadre de la fentre. Utiliser les outils de cadrage ci-dessous pour la cadrer selon le besoin.
|
|
|
|
|
|
|
ÊEchelles des Vues# |
|
|
|
6 - ƒchelles des Vues |
|
|
|
|
Les vues orthographiques peuvent tre affichŽes ˆ une Žchelle prŽcise.
L'Žchelle courante de la vue
est affichŽe dans la liste dŽroulante ![]()
Pour forcer l'image ˆ une Žchelle donnŽe :
Cliquer dans la liste dŽroulante des Žchelles.
Le menu se dŽroule. Choisir l'Žchelle dŽsirŽe.
|
|
L’utilisateur peut ajouter ses propres Žchelles au menu. PourÊ ajouter des Žchelles spŽciales, cliquer dans la rubrique Ç Echelles SpŽciales… È
Entrer une valeur d’Žchelle dans le champ Valeur et cliquer le bouton Ajouter. Pour effacer une valeur, la sŽlectionner dans la liste et cliquer le bouton Effacer Pour remplacer une valeur, la sŽlectionner dans la liste puis entrer sa nouvelle valeur dans le champ Valeur et cliquer le bouton Remplacer. |
La valeur de l'Žchelle courante est modifiŽe par toutes les fonctions de zoom.
|
|
|
|
|
|
|
Image Plein Cadre# |
|
|
|
7 - Image Plein Cadre |
|
|
|
|
Pour forcer l'image ˆ occuper toute la surface de la fentre de travail :
Cliquer dans l'ic™ne
.
ou
Utiliser son accŽlŽrateur (touche X par dŽfaut).
ou
Utiliser son stroke.
L'image est redimensionnŽe de telle manire qu'elle occupe toute la surface de la fentre de travail.
|
|
|
|
|
|
|
Ajuster la taille de l'image ˆ la sŽlection# |
|
|
|
8 - Ajuster la taille de l'image ˆ la sŽlection |
|
|
|
|
Pour forcer la sŽlection courante ˆ occuper toute la surface de la fentre de travail :
Cliquer dans l'ic™ne
.
ou
Utiliser son accŽlŽrateur (touche S par dŽfaut).
ou
Utiliser son stroke.
L'image est redimensionnŽe de telle manire que les nœuds sŽlectionnŽs occupent toute la surface de la fentre de travail.
|
|
|
|
|
|
|
Cadrer l'image# |
|
|
|
9 - Cadrer l'image |
|
|
|
|
Pour cadrer manuellement l'image :
Cliquer dans l'ic™ne
.
Cliquer dans la fentre de travail.
Draguer pour dŽplacer l'image.
Cliquer ˆ nouveau dans l'ic™ne
Êpour quitter le mode
cadrage.
Il est cependant plus pratique de procŽder Žgalement comme suit :
Appuyer simultanŽment sur les touches Cmd et Maj.
Le curseur se transforme en
.
Cliquer dans la fentre de travail.
Draguer pour dŽplacer l'image.
L‰cher le bouton de la souris pour fixer le nouveau cadrage.
|
|
|
|
|
|
|
Mise au Net# |
|
|
|
10 - Mise au Net |
|
|
|
|
La mise au net consiste ˆ redessiner l'image pour en Žliminer les traces laissŽes par diverses fonctions (marquage,…).
Pour mettre au net une image :
Cliquer dans l'ic™ne
.
|
|
|
ÊEffacer la Fentre# |
|
Opt+ |
|
11 - Effacer la Fentre |
|
|
|
|
Pour effacer la fentre de travail :
Cliquer dans l'ic™ne
Êavec
le bouton droit.
|
|
|
|
|
|
|
ÊRŽglage du Fond de la Fentre# |
|
|
|
12 - RŽglage du Fond de la Fentre |
|
|
|
|
Le graphisme du fond de la fentre de travail peut tre rŽglŽ au gožt de l'opŽrateur.
Pour rŽgler le fond de la fentre :
Cliquer dans la fentre de travail avec le bouton droit.
Choisir Fond de la fentre~.
Le dialogue suivant est proposŽ :
|
|
|
|
|
Cliquer dans la fentre pour afficher la palette.
Choisir une couleur dans la palette.
Une teinte unie remplit le fond de la fentre.
Voir ci-dessous le cas particulier des fonds Blancs et Noirs. |
|
|
Cliquer dans la partie haute ou basse pour afficher la palette.
Choisir les teintes.
RŽgler la hauteur de l'horizon ˆ l'aide de l'ascenseur.
Le fond est un fondu encha”nŽ d'une couleur ˆ l'autre. |
|
|
|
|
|
Cliquer dans la partie haute ou basse pour afficher la palette.
Choisir les teintes.
RŽgler la hauteur de l'horizon ˆ l'aide de l'ascenseur.
Si l’horizon est
affichŽ, (
Choisir le type de dŽgradŽ pour chaque zone |
|
|
|
|
|
Cliquer dans la fentre pour afficher la palette des motifs.
Choisir un motif dans la palette des motifs
Le motif est dessinŽ avec la couleur unie courante |
|
|
|
|
|
Le fond de la fentre est l'image se trouvant dans le presse-papiers. L'image est centrŽe. |
|
|
Le fond de la fentre est l'image se trouvant dans le presse papiers. L'image est centrŽe et redimensionnŽe pour cadrer dans la fentre de travail. |
Les fonds Blanc et Noirs unis sont traitŽs spŽcialement par la rubrique dynamique Ç Fond de la Fentre…~~ È
|
|
|
Elle permet de forcer directement un fond Blanc ou Noir. Dans ce cas, la couleur des traits, pochages, hachures, textes, etc, est automatiquement adaptŽe au contraste du fond.
|
|
|
|
|
|
Afficher / Masquer la taille de la fentre# |
|
|
|
13 - Afficher / Masquer la taille de la fentre |
Pour afficher la taille de la fentre de travail
Cliquer dans la fentre de travail avec le bouton droit.
La rubrique Taille de la fentre indique la taille courante de la fentre de travail.
![]()
|
|
|
Ouvrir / Fermer la Fentre de Survol# |
|
|
|
14 - Fentre de Survol - Navigation dans l'image |
|
|
|
|
Pour afficher la fentre de Survol :
Cliquer dans l'ic™ne
.
La fentre flottante de survol s'ouvre. On la postionne o l’on souhaite.Ê Elle est redimensionnable ˆ volontŽ.
|
|
|
La fentre de survol prŽsente en permanence une vue du mme type que la vue de travail mais traitŽe de telle manire que toute l'image soit visible. Son contenu est toujours filaire sans cotation, en vue orthographique ou perspective.

Ê
La fentre de survol permet de cadrer et zoomer dynamiquement l'image dans la fentre de travail.
Ë l'aide de la fentre de survol, il est possible de recadrer l'image de travail en vue orthographique ou perspective.
|
|
|
|
|
|
|
ÊCentrage du point d'intŽrt # |
|
|
|
15 - Centrage du point d'intŽrt |
|
|
|
|
Cliquer dans la fentre de survol sur un point de l'image.

L'image dans la fentre de travail est recadrŽe sans changement d'Žchelle, de telle manire que le point cliquŽ soit positionnŽ au centre de la fentre de travail.
|
|
|
|
|
|
|
ÊCentrage dynamique # |
|
|
|
16 - Centrage dynamique |
|
|
|
|
Cliquer dans la fentre de survol sur un point de l'image Le
curseur devientÊ
.
Glisser la souris sans rel‰cher le bouton.Ê
L'image dans la fentre de travail est recadrŽe sans changement d'Žchelle, de telle manire que le point cliquŽ soit positionnŽ au centre de la fentre, puis l'image suit le dŽplacement de la souris.
L‰cher le bouton pour fixer la position.

|
|
|
|
|
|
|
ÊZoom dynamique # |
|
|
|
17 - Zoom dynamique |
|
|
|
|
Appuyer simultanŽment sur les touches Alt et Maj.Ê
Le curseur se transforme en ![]()
Cliquer dans la fentre de survol et glisser pour former un rectangle.Ê L‰cher le bouton de la souris pour dŽclencher le zoom.
L'image dans la fentre de travail est recadrŽe et son Žchelle modifiŽe pour faire co•ncider la fentre de zoom avec la fentre de travail.
|
|
|
|
|
|
|
|
|
Modification automatique du point de vue# |
|
|
|
18 - Modification automatique du point de vue |
|
|
|
|
Les opŽrations sur une image perspective peuvent ou non modifier automatiquement le point de vue, de telle manire que les prochains calculs de perspective produisent la mme vue.
Pour que les modifications apportŽes ˆ l'image affectent le point de vue :
Cliquer dans l'ic™ne
.
L'ic™ne reste enfoncŽe pour indiquer que les modifications de l'image modifieront aussi le point de vue.
Cliquer ˆ nouveau dans l'ic™ne
Êpour
la relever.
Les modifications apportŽes ˆ l'image n'affecteront plus le point de vue. Le calcul de la perspective reproduira l'image identique avant les modifications.
|
|
|
|
|
|
|
Image plein cadre automatique# |
|
Ctrl+ |
|
19 - Image plein cadre automatique |
|
|
|
|
Une option permet de redimensionner automatiquement l'image ˆ chaque mouvement de camŽra afin que le modle soit toujours le plus grand possible dans la fentre de visualisation.
Cliquer dans l'ic™ne
Êavec
le bouton droit de la souris.
Le dialogue suivant est proposŽ :

Cocher la case Image plein cadre automatique afin de mettre en marche cette option.
Toutes les vues orthographiques (Dessus, Dessous, Face, Arrire, Gauche, Droite) et leurs modifications (zooms, cadrages) sont enregistrŽes dans une liste appelŽe "historique de vues".
On peut parcourir cette liste pour remonter ou redescendre dans l'historique et rŽafficher des vues anciennes.
|
|
|
|
|
|
|
Remonter dans l'historique des vues# |
|
|
|
1 - Remonter dans l'historique des vues |
|
|
|
|
Pour remonter dans l'historique des vues :
Cliquer dans le bouton
.
|
|
|
|
|
|
|
Descendre dans l'historique des vues# |
|
|
|
2 - Descendre dans l'historique des vues |
|
|
|
|
Pour descendre dans l'historique des vues :
Cliquer dans le bouton
.
|
|
|
|
|
|
|
Optimiser la Vue# |
|
|
|
3 - Optimiser la Vue |
|
|
|
|
Une vue en faces cachŽes vectorielle (vue solide vectorielle) peut contenir de nombreuses facettes totalement recouvertes par d'autres et par consŽquent invisibles. Ces facettes ne sont donc d'aucune utilitŽ pour la comprŽhension de l'image. Elles l'alourdissent inutilement.
Il est utile de les Žliminer avant d'imprimer ou d'exporter l'image. On gagnera ainsi beaucoup de temps ˆ l'impression des gros modles et beaucoup de place disque.
Pour optimiser une vue faces cachŽes actuellement affichŽe ˆ l'Žcran :
Utiliser le menu Outils/Optimiser la vue.
A la fin de l'opŽration, la barre d'Žtats indique le nombre de facettes invisibles ŽliminŽes par rapport au nombre de facettes constituant la vue :
![]()
Remarque 1 : Les facettes rŽduites ˆ un point dans l'image ne participent pas ˆ la comprŽhension de la vue ˆ son Žchelle actuelle ! Elles sont donc ŽliminŽes. Mais si par la suite, on zoome sur l'image, des trous vont appara”tre. Il est donc absolument nŽcessaire d'effectuer cette opŽration sur la vue ˆ son Žchelle finale d'impression ou d'enregistrement. On pourra utilement zoomer sur l'image avant de rŽaliser l'optimisation pour faire appara”tre les plus petites facettes. Mais plus l'image est grande, plus le temps de calcul est grand.
Remarque 2 : Cette fonction est totalement inutile sur une vue OpenGL. Les vues OpenGL ne sont pas vectorielles !.
Le dŽtourage d’un calque consiste ˆ utiliser un objet de ce calque, de type Ç DŽtourageÈ pour dŽlimiter son image ˆ l’Žcran et ˆ l’impression. Le dŽtourage ne fonctionne qu’en rendu filaire, en plan ou en perspective.
Le dŽtourage est un paramtre des Points de Vue. L ‘option dŽtourage est donc mŽmorisŽe dans tous les Points de Vue enregistrŽs, les Vues dans les Mises en Page et les Robots.
Pour dŽtourer l’image d’un calque, procŽder comme suit :
- Dans le calque ˆ dŽtourer, crŽer un objet reprŽsentant le contour de dŽtourage. Ce contour peut tre absolument quelconque pourvu que sa liste de points soit ordonnŽe. Cet objet peut, par exemple, tre une simple liste ordonnŽe de points libresÊ donc invisibles. Le nom de cet objet peut tre quelconque.
- ÊA l’aide du menu de la Fentre de Gestion des Objets, re-typer l’objetÊ en Ç DŽtourage È
|
|
- Activer ( ou dŽsactiver) le dŽtourage en choisissant la rubrique Ç DŽtourage È dans le menu contextuel de la Fentre de Travail
|
|
|
|
Lorsque la rubrique DŽtourage est cochŽe, le dŽtourage est actif. |
Ê
|
|
|
Vue sans DŽtourage |
|
|
|
Vue DŽtourŽe ( l’objet de dŽtourage est la liste de points de la parcelle ) |
|
|
|
Perspective dŽtourŽe |
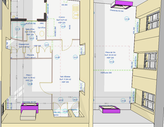
Convertir la Vue en Fond de Plan 3D#
Cette fonction convertit une vue d’un plan 2D avec l’ensemble des graphismes (cotations, textes,.. )Ê affichŽs en vue orthographique en une Image de texture mise ˆ l’Žchelle du modle 3D, afin d’tre incluse dans une Vue perspective OpenGL, dans laquelle la texture appara”tra en fond.
- PrŽparer Êun plan 2D d’un projet 3D et le modle 3D correspondant superposŽ.
|
|
|
|
- Afficher le plan 2D ˆ l’Žchelle pour lequel il a ŽtŽ conu. Habituellement il s’agit d’une vue orthographique de Dessus , mais le systme fonctionne Žgalement avec les autres vues ( Faces, Arrire, Gauche, Droite).
|
|
|
ÊRŽglage des Facteurs de zoom# |
|
|
|
1 – CrŽer un Fond de Plan 3D |
|
|
|
|
- Cliquer
dan l’ic™ne Ê![]()
Le dialogue de rglage d’une sortie PDF est prŽsentŽ :
|
|
- Ajuster le cadre et le centrageÊ de manire ˆ ce que le plan 2D soit correctementÊ prŽsentŽ. Il est prŽfŽrable de ne pas changer le facteur d’ Žchelle, bien que cela soit possible.
-
Cliquer le bouton Ê![]()
- RŽpondre au dialogue qui demande le n¡ du calque dans lequel sera crŽŽ le fond de Plan 3D . Le dialogue est prŽ-renseignŽ avec le n¡ du premier calque libre.
|
|
- Cliquer OK pour continuer ou Annuler pour arrter la crŽation.
Le fond de plan 3D est crŽŽ et prŽsentŽ en Vue OpenGL dans le calque choisi, qui devient le calque courant. L’image de la texture est rangŽe dans le sous-Dossier Ç Images È du dossier T3D_CompanionDocs du projet.
|
|
|
|
Un objet Ç DrafMaped È est crŽŽ dans le calque dŽsignŽ.
|
- Introduire dans la Vue perspective les calques correspondants au modle 3D ˆ visualiser
-
Dans le pilote OpenGL cocher la case
Ê![]()
|
|
Le Fond de Plan 3D appara”t sous le modle 3D pour un effet de prŽsentation spectaculaire. En rŽpŽtant le principe avec des Vue orthographiques verticales, on peut inclure plusieurs fonds de plan judicieusement disposŽs.
|
|
|
|
|
|
|
|
|
|